Ipari rozsdamentes rácsos lefolyó folyamatos, 250×250-135, AISI 304

APR6-2211-135

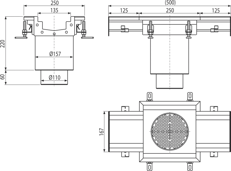
Vízbűzzár50 mm
  • Nagyobb ipari létesítmények vízelvezetésére, valamint egyéb kereskedelmi létesítmények, épületek belsejében, pl. a vegyiparban és az élelmiszeriparban
  • Nagyobb mennyiségű víz elvezetéséhez, alkalmas hosszabb távolságokra
  • A lefolyó rozsdamentes acélból készül (pácolással és passziválással nemesített anyag), ez a folyamat garantálja a rozsdamentes acél több évre szóló minőségét és megbízható működését
  • Az egész rendszer stabilan rögzíthető a betonba az egyszerűen állítható lábak és oldalsó merevítők segítségével
  • Magas vízáramlási sebesség
  • Állítható magasság 85-125 mm tartományban
  • A tömítés teljes vízállóságot biztosít
  • Lefolyó anyaga: rozsdamentes acél 1,5 mm DIN 1.4301
  • EN 1253-1
Mennyiség (csomagolás) 1 db
Mennyiség (paletta) - db
Méret (db) 500×280×250 mm
Súly (db) 5,5455 kg
Súly (csomagolás) 5,5455 kg
Súly (paletta) - kg
  • Lefolyó
  • Tömítés 1 db
  • Állítható lábak – 4 db
  • Szennyfogó szűrő
  • Bűzzár
  • Rögzítő szett
KódEANMűszaki leírás
APR6-2211-1358595580573508Technický list

Áfa nélküli ár. Többet az árakról – Árlista
Az árak változhatnak.